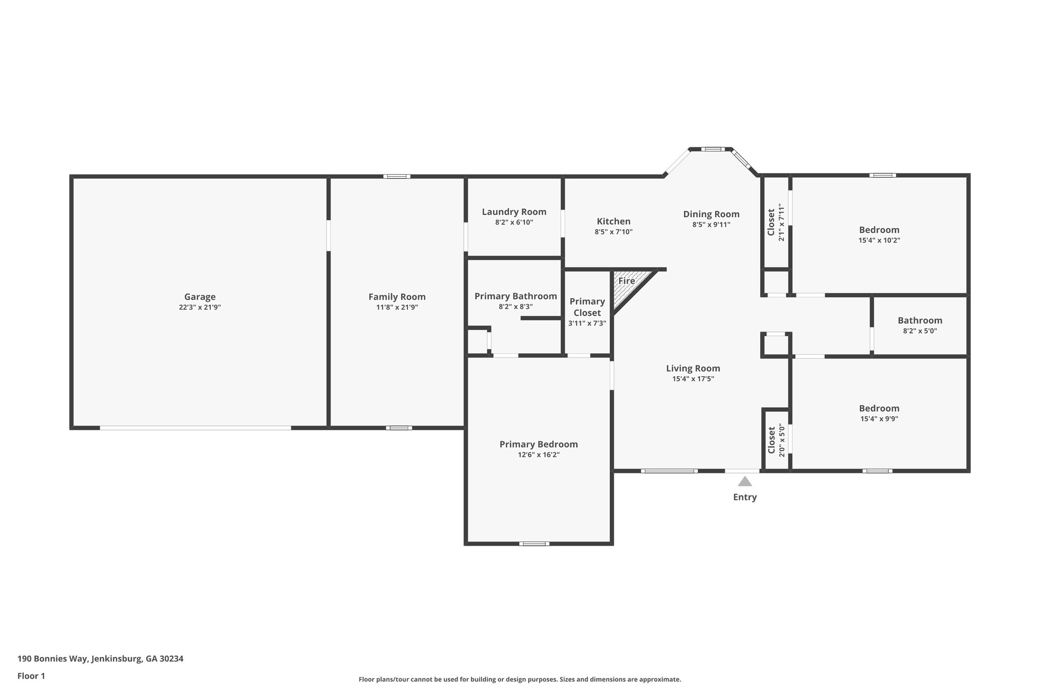
190 Bonnies Way, Jenkinsburg, GA 30234
Toggle Navigation
Images
Floor Plans
3D Tour
Map
190 Bonnies Way
Jenkinsburg, GA 30234
Scroll to Content
Images
Slideshow
Photo Grid
Hide
Previous
Next
Show more
Floor Plans
Slideshow
Photo Grid
Hide
Previous
Next
3D Tour